top of page

DEER
ARCHITECTS
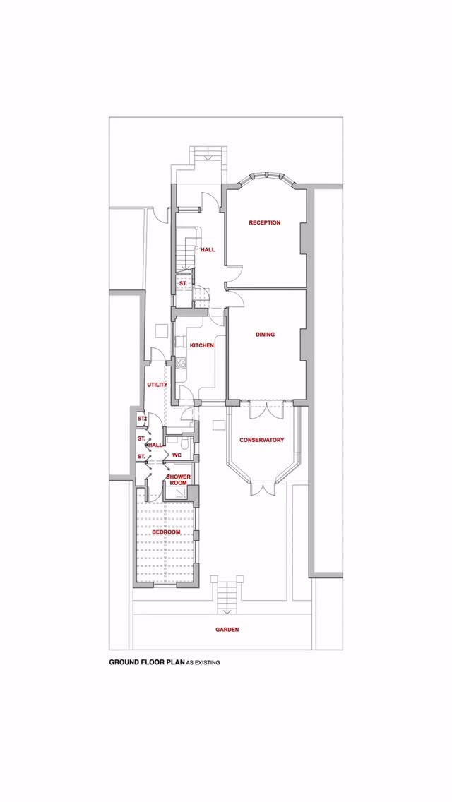
Deer Architects, a committed and innovative architecture practice in South Wales specialising in bespoke residential architectural design and contemporary architectural solutions for extensions, lofts, and internal renovations.
Our goal is to design environments where memories are made. Think about the home you grew up in, the spaces, the light, the sounds, the materials. These elements shape your senses and stay with you, becoming part of your memory.




































































































bottom of page






